
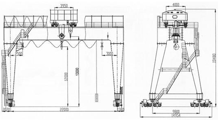
Grue de levage lourd, Double poutre portique grue 30 tonnes
Grue portique double faisceau avec crochets est appliqué à l’extérieur d’entrepôt ou de la gare sur le côté pour faire la commune de levage et de travaux de déchargement. Ce type de grue est composé du pont, soutenant les jambes, orgue ambulant de grue, chariot avec fort treuil de levage, matériel électrique et système de contrôle. Son design robuste, il peut être largement utilisé dans toutes sortes de domaine industriel.
grue de levage lourd, grue de portique de faisceau double 30 tonnes
Grue portique double faisceau avec crochets est appliqué à l’extérieur d’entrepôt ou de la gare sur le côté pour faire la commune de levage et de travaux de déchargement. Ce type de grue est composé du pont, soutenant les jambes, orgue ambulant de grue, chariot avec fort treuil de levage, matériel électrique et système de contrôle. Son design robuste, il peut être largement utilisé dans toutes sortes de domaine industriel.